Several plans have come in to increase the classroom capacity of schools in Aireborough.
Guiseley Infant and Nursery School (To become Guiseley Primary School from September 2015)
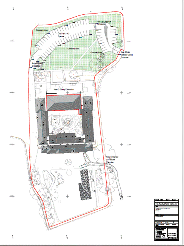
The proposal here is for a two storey extension to the rear of the school to accommodate six new classrooms and a staff room. The main entrance would then be in this new ‘rear’ extension. There would also be a single storey extension to the internal area of the school forming studio teaching space. Whilst the new work was ongoing there would be 3 cabins for temporary classrooms for 5 years, on the grass at the front (Oxford Rd) of the school.
A new car park would be laid out to the rear of the site, together with a drop off zone; there would be a new entrance to the West Villa Road side for service vehicles. In addition, a waiting limit of 1 hour would be introduced on West Villa Road, to stop long stay parking by commuters. There would also be double yellow lines put a key junctions on roads around the school (see the transport statement).
The full plan documents are here 15/02925/FU.
Plans for the internal extension and temporary classrooms are here 15/02920/FU
Comments are invited on this by Leeds City Council to both proposals by 9th July 2015. These can be made on the Leeds Planning website.
Hawksworth Church Of England Primary School, Hawksworth
Hawksworth school has put in plans for an external classroom, as additional teaching space is required, following an Ofsted comment that “the use of cloakrooms as teaching spaces whilst innovative, is not an ideal situation”. In order to avoid disruptive and costly alterations to the existing building it has been decided to provide an external ‘pod’ classroom particularly for before and after school clubs, on an unused part of the grounds, with relevant landscaping.
The full plan documents are here 15/02860/FU. Responses are required by Leeds City Council by 9th July 2015.
St Marys Catholic Comprehensive School Bradford Road Menston
St Mary’s is wanting to build a single storey extension to form three classrooms and store, in order to address the issue of “undersized facilities for the steadily increasing number of pupils going to the school”. The new building would be to the south-side of the school, and would accommodate three classroom of 90 sq meters each, along with a science preparation room and a new chemical store.
The full plan documents are here 15/02772/FU. Responses are required by Leed City Council by 9th July 2015

You must be logged in to post a comment.