Aireborough Neighbourhood Development Forum

Designing A Thriving Place

Main Menu

Skip to content
  • Home
  • About Aireborough Forum
    • ANDF Meeting & Event Reports
  • FAQ
  • Training and Reference
    • LANDSCAPE VALUE PROJECT
    • AIREBOROUGH MASTERPLAN EVIDENCE BASE
  • Steering Group & Contact
  • Planning Applications
  • Aireborough Site Allocations
    • Banksfield/Coppice Wood 1255B (HG2-3)
    • Coach Road 1180A, 1311A, 2163A (HG2-5)
    • Gill Lane, Nether Yeadon 1221 (HG2-10)
    • Hollins Hill 4020 (HG2-4)
    • Ings Lane (New Birks Farm) 3026 (HG2-1)
    • Ings Lane 4043 (HG3-1)
    • Rawdon (Various)
    • Silverdale Allotments 1113 (HG2-6)
    • Victoria Avenue, Yeadon 3366 (HG2-9)
    • Wills Gill 3029 (HG2-2)

Monthly Archives: April 2022

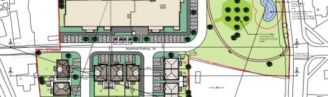
APPLICATION FOR SILVERDALE RETIREMENT VILLAGE

04/19/2022by Jennifer Inskip Kirkby

The planning application for the Coach Road Allotment sites by McCarthy Stone and Stonebridge Homes has now been lodged with Leeds City Council, you can review the plans here, and […]

Read Article →
General News and Events

Post navigation

  • Planning News & Updates
  • General News and Events
  • ANDF Research & Ideas
  • Green Belt Challenge

5 Ways to Get Involved

THE FUTURE IS IN YOUR HANDS

Aireborough Neighbourhood Forum Local Giving

Affiliated to

Enter your email address to follow this blog and receive notifications of new posts by email.

Join 376 other subscribers

Aireborough Voice on Facebook

Aireborough Voice on Facebook

Recent Comments

Latty, Cllr Graham's avatarLatty, Cllr Graham on Update – Consultation on…
Tom Booth's avatarTom Booth on Growing Up in Aireborough…
Simon Toyne's avatarSimon Toyne on From a Mirage to Reality…

Recent Posts

  • Consultation Response On Green Belt Sites
  • GREEN BELT IN DANGER FRIGHTENS THE PUBLIC
  • How do you feel about this site being proposed for development?
  • Leeds’ New Housing and Employment Plan – Crucial Consultation
  • Charges Announced for Chevin Car Park

Meta

  • Create account
  • Log in
  • Entries feed
  • Comments feed
  • WordPress.com

DONATE TO THE AIREBOROUGH GREEN BELT CHALLENGE

STANDING UP FOR COMMUNITY VOICE ON PLANNING

Tony Burton (@Tony4Place) tweeted at 8:03 a.m. on Thu, Jan 16, 2020:
Good to see High Court judge rule “An unincorporated association does have capacity to bring both a judicial review and a statutory challenge” in test of #neighbourhoodplanning forum status which has much wider implications for civil society https://t.co/Qp3MKJxDf8 @AireboroughV
(https://twitter.com/Tony4Place/status/1217719092397985792?s=02)
SEE ALL OUR POSTS ON THE GREEN BELT CHALLENGE https://aireboroughnf.wordpress.com/category/green-belt-challenge/

National Design Guide 2019

AIREBOROUGH URBAN CHARACTER REPORT

To access double click on picture

AIREBOROUGH LANDSCAPE CHARACTER REPORT

To access double click on picture

AIREBOROUGH’S NATURAL AND BUILD ENVIRONMENT BASELINE REPORT

To access double click on picture

Housing Allocations Site Information

Click on picture for information on individual site allocations

LEEDS BRADFORD AIRPORT MASTERPLAN 2030

Click to read more and respond

What Is A Neighbourhood Forum – Useful Video

To join the Aireborough Forum click on 'Join Us'

Membership Form

Archives

  • September 2025
  • July 2025
  • September 2024
  • July 2024
  • June 2024
  • January 2024
  • September 2023
  • June 2023
  • May 2023
  • November 2022
  • October 2022
  • September 2022
  • May 2022
  • April 2022
  • March 2022
  • December 2021
  • November 2021
  • September 2021
  • August 2021
  • July 2021
  • April 2021
  • February 2021
  • January 2021
  • December 2020
  • August 2020
  • June 2020
  • March 2020
  • February 2020
  • January 2020
  • December 2019
  • November 2019
  • October 2019
  • September 2019
  • August 2019
  • July 2019
  • June 2019
  • May 2019
  • February 2019
  • January 2019
  • December 2018
  • November 2018
  • October 2018
  • September 2018
  • August 2018
  • July 2018
  • June 2018
  • May 2018
  • April 2018
  • March 2018
  • February 2018
  • January 2018
  • December 2017
  • November 2017
  • October 2017
  • September 2017
  • July 2017
  • June 2017
  • May 2017
  • April 2017
  • March 2017
  • February 2017
  • January 2017
  • December 2016
  • November 2016
  • October 2016
  • September 2016
  • July 2016
  • June 2016
  • May 2016
  • April 2016
  • March 2016
  • February 2016
  • December 2015
  • November 2015
  • October 2015
  • September 2015
  • July 2015
  • June 2015
  • May 2015
  • April 2015
  • March 2015
  • February 2015
  • January 2015
  • December 2014
  • November 2014
  • October 2014
  • September 2014
  • August 2014
  • July 2014
  • June 2014
  • May 2014
  • April 2014
  • March 2014
  • February 2014
  • December 2013
  • September 2013
  • July 2013
  • June 2013
  • May 2013
  • April 2013
  • March 2013
  • February 2013
  • January 2013
  • December 2012
  • November 2012
  • October 2012

Aireborough architecture children community diaries emotions event evidence forum front runners green space Guiseley Guiseley Infant School Hawksworth High Royds hills Hobbycraft housing infrastructure Jonathan Peate LDF leeds Localism Act members mills neighbourhood forums news NPPF Olympics parish councils parking philanthropy place awareness walks placemaking placemaking walks planning politics programme promote research Response Rowan Moore Saltaire SHLAA site allocations skills sustainable Traffic transport urban sprawl views WARD Yeadon
Blog at WordPress.com.
  • Subscribe Subscribed
    • Aireborough Neighbourhood Development Forum
    • Join 376 other subscribers
    • Already have a WordPress.com account? Log in now.
    • Aireborough Neighbourhood Development Forum
    • Subscribe Subscribed
    • Sign up
    • Log in
    • Report this content
    • View site in Reader
    • Manage subscriptions
    • Collapse this bar